Voorstraat 21
Nederhorst Den Berg
Bekijk 28 foto's
Bekijk 28 foto's
Bekijk 28 foto's
Heeft u interesse?
Neem contact met ons op. We geven graag meer informatie of plannen een bezichtiging.
Prijs
€ 395.000 k.k.
Woningtype
Eindwoning
Woonoppervlakte
66m²
Kamers
3
Omschrijving
Kenmerken
- Prijs
- € 395.000 k.k.
- Status
- Verkocht onder voorbehoud
- Oplevering
- In overleg
- Adres
- Voorstraat 21
- Postcode
- 1394 CT
- Plaats
- Nederhorst Den Berg
Aanvaarding
Bouw
- Soort woonhuis
- Eengezinswoning, Eindwoning
- Soort bouw
- Bestaande bouw
- Bouwjaar
- 1950
- Onderhoud binnen
- Goed
- Onderhoud buiten
- Goed
Oppervlakten en inhoud
- Woonoppervlakte
- ca. 66m²
- Perceeloppervlakte
- ca. 99m²
- Overig oppervlakte
- ca. 9m²
- Inhoud
- ca. 267m³
Indeling
- Aantal kamers
- 3
- Aantal slaapkamers
- 1
- Aantal badkamers
- 1
- Aantal verdiepingen
- 2
Energie
- Energielabel
- D
- Isolatie
- Dakisolatie, Gedeeltelijk dubbel glas
- Warm water
- Elektrische boiler eigendom
- Verwarming
- Elektrische verwarming, Houtkachel
Buitenruimte
- Ligging
- In centrum
- Tuin
- Achtertuin
- Achtertuin
- West, 45m², 600×750cm
Garage
Locatie
[
{
"address": "Voorstraat
21",
"zipCode": "1394 CT",
"city": "Nederhorst Den Berg",
"lat": 52.2647673,
"lng": 5.0450264,
"heading": 0,
"pitch": 0
}
]
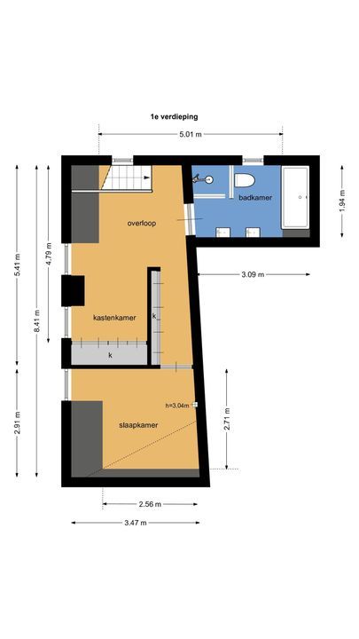
Plattegronden
Interesse? Neem contact met ons op
Vul hier uw gegevens in en wij nemen zo snel mogelijk contact met u op.
